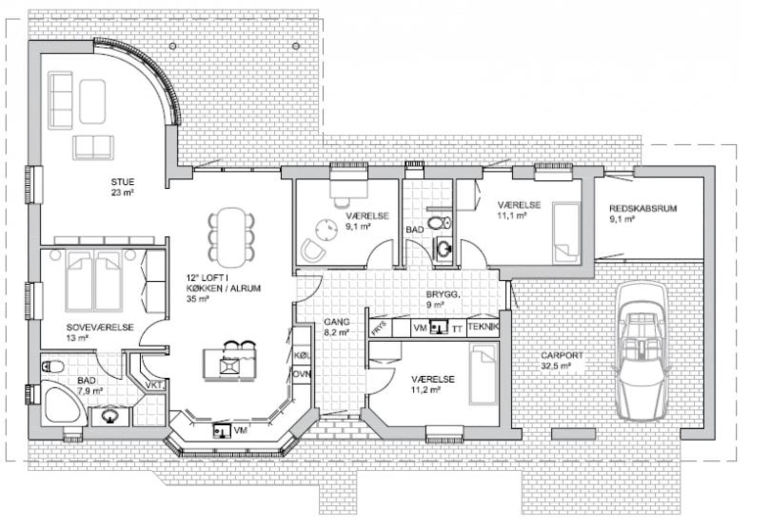
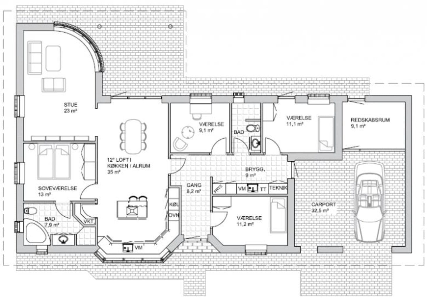
Typehus 163

Information om typehuset

​Bolig: 163 m2, carport: 47 m2

Værelser: 4

​​​​Type 163 er en stor flot indrettet villa med mange detaljer. Stort køkken/alrum med 12° loft, hvorfra der er adgang til et lille viktualierum. Køkken/alrum med udgang til stor overdækket terrasse. Køkken med karnap. Hyggelig indrettet stue med buet vinduesparti.Soveværelse med direkte adgang til badeværelse med badekar. Stor integreret carport med adgang til bryggers.​

​Arbejdsvenligt køkken med kogeø. Stort køkken/alrum med plads til mange mennesker, loft 12° Praktisk badeværelse med stor brusekabine og badekar. Dejligt køkken med gennemgående lys fra begge sider af huset.

Se billeder og plantegninger af dette typehus:

Vi er kun få klik væk!

Send en forespørgsel

96 94 00 18
lis@barvibyg.dk