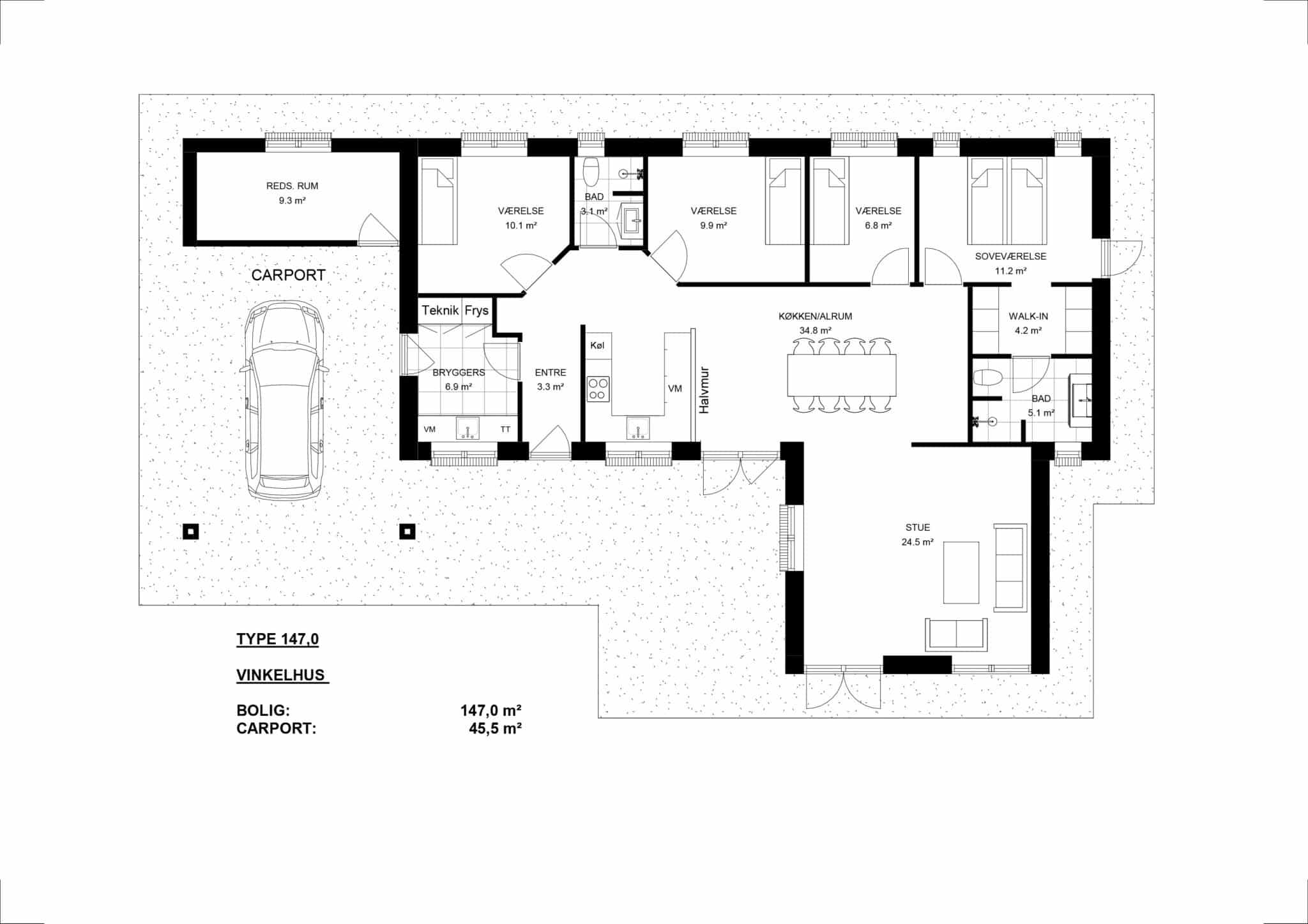
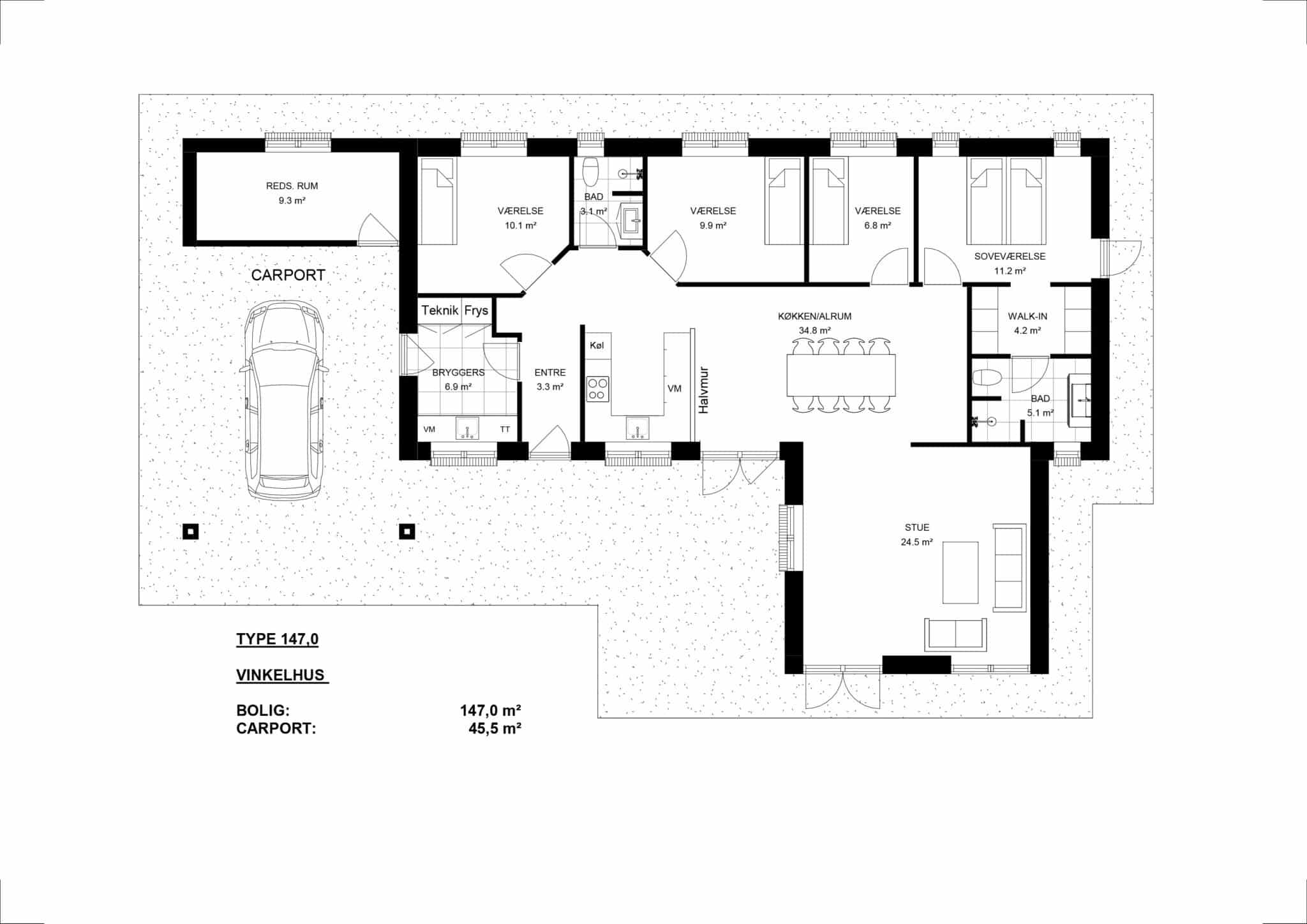
Typehus 147

Information om typehuset

​Bolig: 147 m2, carport: 45 m2

Værelser: 4

Se billeder og plantegninger af dette typehus:

Vi er kun få klik væk!

Send en forespørgsel

96 94 00 18
lis@barvibyg.dk