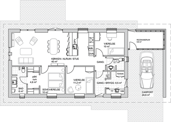
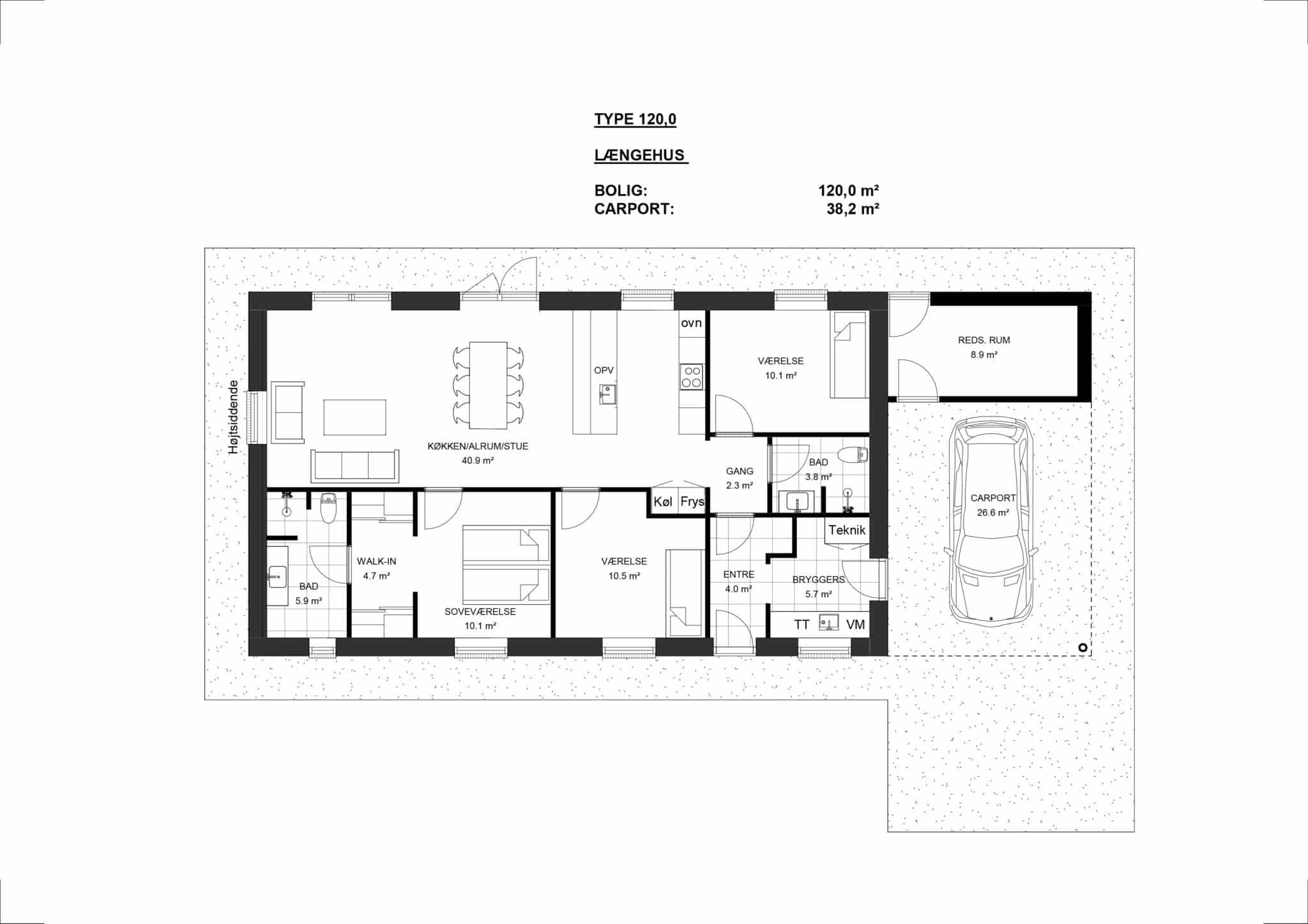
Typehus 120

Information om typehuset

​Bolig: 120 m2, carport: 38 m2

Værelser: 3

Se billeder og plantegninger af dette typehus:

Vi er kun få klik væk!

Send en forespørgsel

96 94 00 18
lis@barvibyg.dk