Købers ønske 3

Information om typehuset

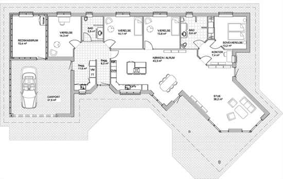
Værelser: 4

Stort køkken/alrum med plads til mange mennesker. Typehus 167,5 tilpasset købers ønske. Huset er perfekt til en sydvendt grund. Samtalekøkken, stort indbydende fællesrum. Stue med Troldtekt loft, som giver en god akustik.

Se billeder og plantegninger af dette typehus:

Vi er kun få klik væk!

Send en forespørgsel

96 94 00 18
lis@barvibyg.dk