Købers ønske 2

Information om typehuset

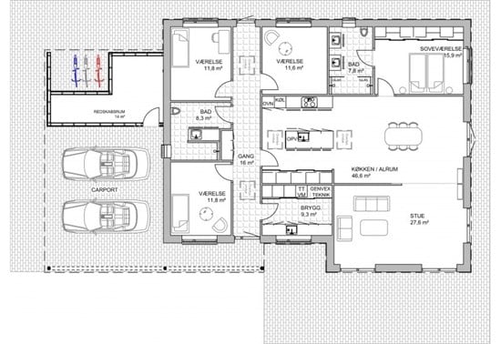
​Bolig: 193 m2, carport: 76 m2

Værelser: 4

Vedligeholdelsesfri villa i funkis stil til familien med brug for plads. Dejligt stort køkken/alrum, med godt lysindfald fra ovenlysvindue.

 

Se billeder og plantegninger af dette typehus:

Vi er kun få klik væk!

Send en forespørgsel

96 94 00 18
lis@barvibyg.dk