Typehus 158,1

Information om typehuset

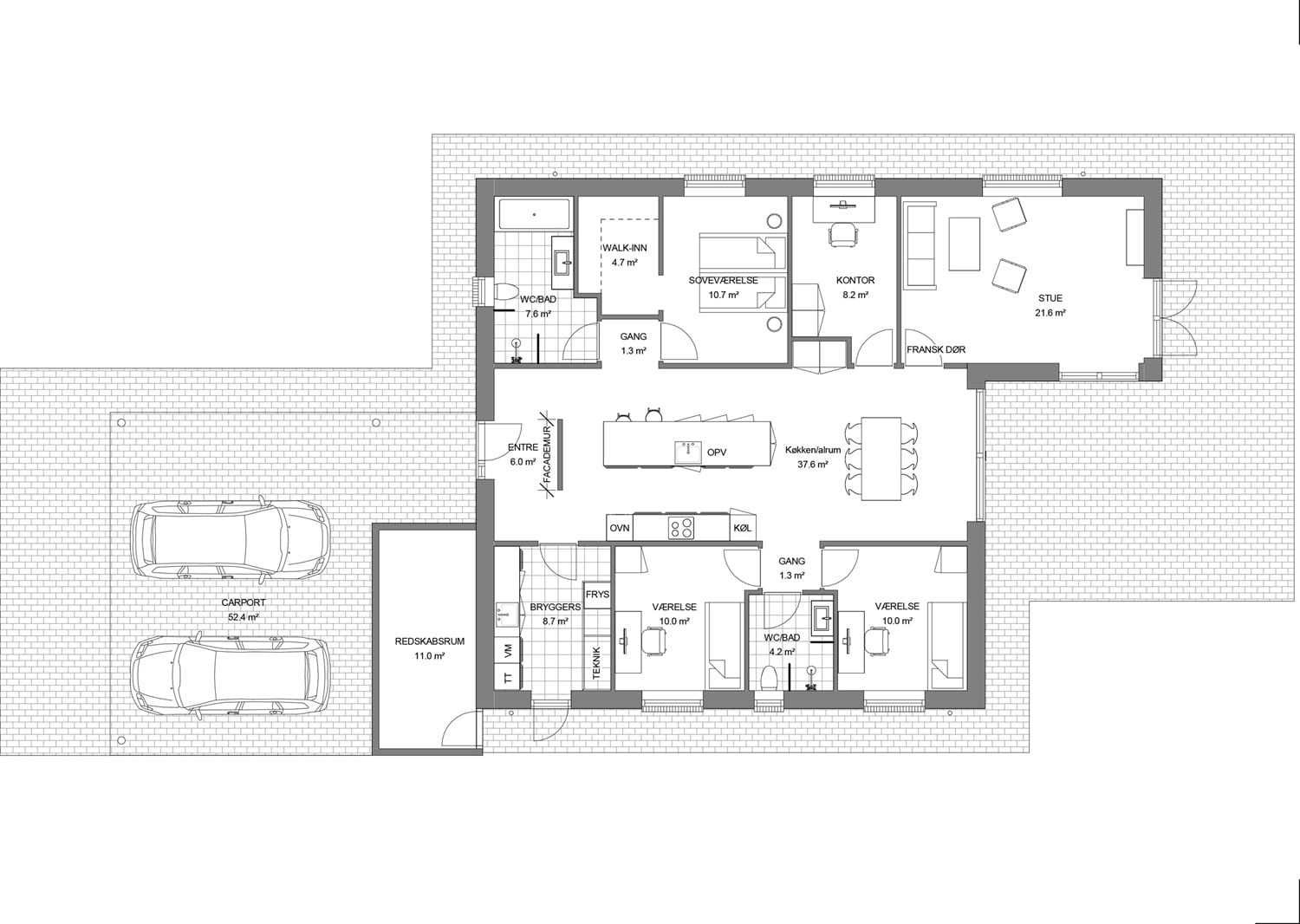
​Bolig: 158,1 m2, carport: 65 m2

Værelser: 3

Se billeder og plantegninger af dette typehus:

Vi er kun få klik væk!

Send en forespørgsel

96 94 00 18
lis@barvibyg.dk